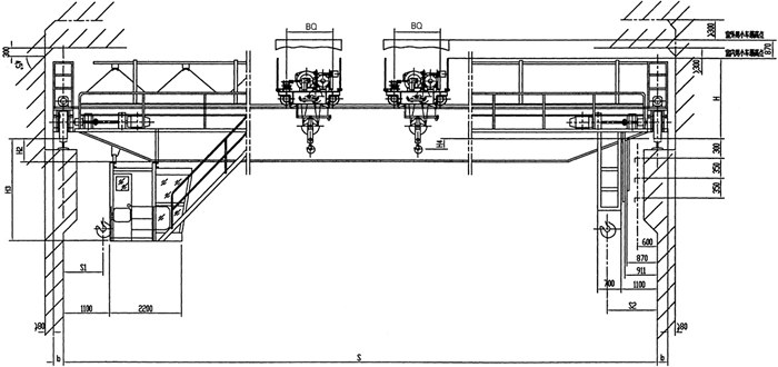
礦山起重機械、雙小車吊鉤橋式起重機廠家講解:本礦山起重機有兩臺小車,兩小車可以同時使用,也可以單獨使用,適用于廠礦企業(yè)的車間或露天倉庫吊運長件材料(木材,紙筒,管封,棒材)。

雙小車橋式起重機與吊鉤橋式起重機的區(qū)別在于主梁上設置兩臺小車,雙小車可以單獨起升,也可單獨運行;當需要抬吊長件物品時,通過控制臺上的轉換開關,實現同步起升,同步運行。礦山起重機質量可靠,價格合理,歡迎選購。
Double—trolley Bridge Crane
注:1.大車導電有角鋼和安全滑觸線兩種形式,供選擇。
2.操縱形式有室操(分開式和閉式),地操和遙控三種,供選擇。







